PROJET APPARTEMENT - PARIS
La demande
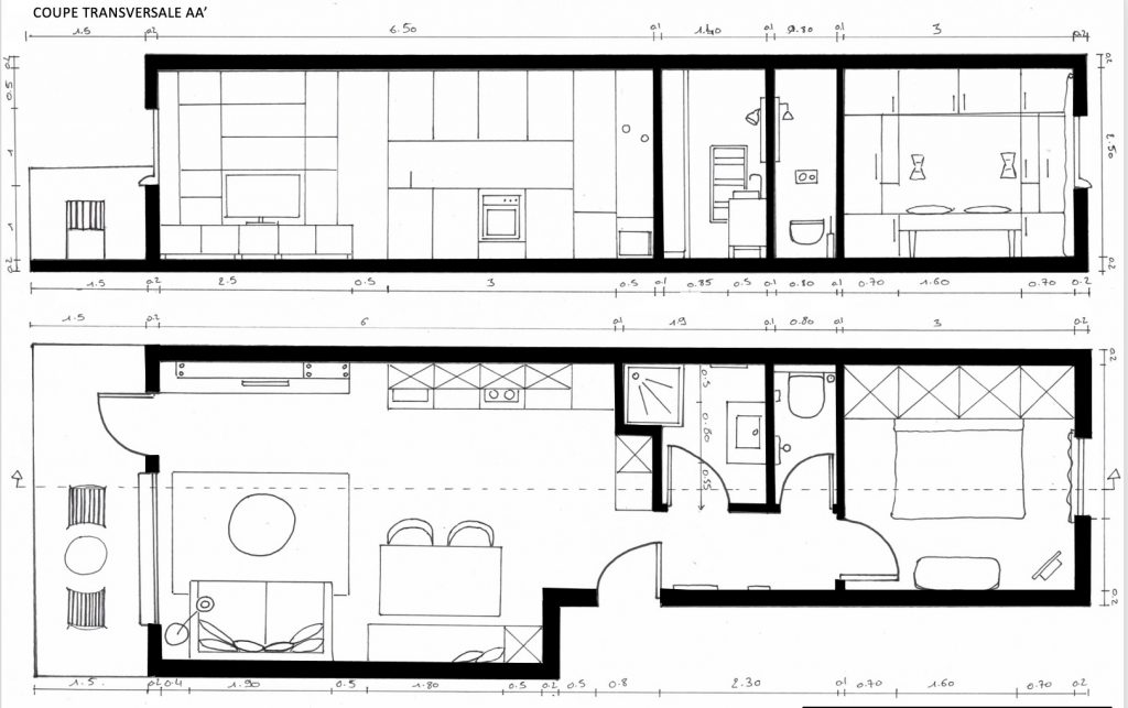
Mes clients souhaitaient aménager et décorer un appartement, de 40m2, situé à Paris pour le louer en tant que AirBnB et l’utiliser en tant que pied à terre.
Mes missions étaient de :
- L’appartement doit être optimisé pour accueillir de 2 à 4 personnes.
- Créer une grande pièce de vie conviviale et chaleureuse, mettant en avant la vue de la baie vitrée
- Le logement doit comporter une vraie chambre mais aussi une solution de couchage pour 2 personnes.
- Vous souhaitez des rangements intégrés afin de pouvoir y ranger vos affaires personnelles et aussi des rangement à destination des locataires
Leur choix s’est arrêté sur une ambiance qui s’inspire du romantisme et du charme parisien des appartements haussmanniens, avec une touche contemporaine.
La décoration doit être un atout afin de répondre à la demande de location et de se démarquer des appartements concurrents.
AVANT-PROJET

Planche ambiance

Plan d'aménagement 2D

Shopping list
RÉALISATIONS



